Property Type
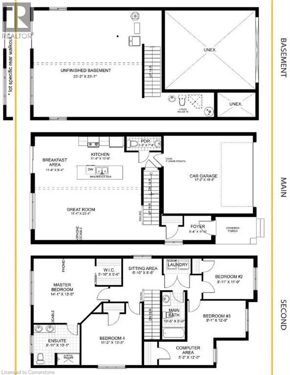
House, House
Parking
Garage: Yes, 5 parking
MLS #
40754023
Size
1949 sqft
Basement
Unfinished, Full (Unfinished)
Listed on
-
Lot size
-
Tax
-
Days on Market
-
Year Built
-
Maintenance Fee
-